Verkocht

Anzarstraat 12 1363 RK Almere

Vraagprijs € 480.000 k.k.

Omschrijving

LET OP, deze woning wordt u aangeboden met een bieden-vanaf prijs!! De vraagprijs is € 498.000,- k.k.
Deze keurig en hoogwaardig afgewerkte VRIJSTAANDE VILLA staat op een zer mooie locatie aan de rand van het gewilde Homeruskwartier te Almere-Poort, met zicht op de naastgelegen bosrand. De villa kenmerkt zich door de handgevormde stenen, brede overstekken, zinken hemelwaterafvoeren, vele grote raampartijen rondom en overdekte entree voorzien van stijlvolle luifel met fraaie kolommen. De villa biedt u een ruime tuingerichte living, leefkeuken voorzien van modern kookeiland en wandmodule, 5 royale slaapkamers, moderne badkamer en separate wasruimte. In de directe nabijheid van de woning treft u het Homeruspark, Pampushout en ook het Almeerderstrand. Allen zeer geliefd voor recreatieve doeleinden (hardlopen, fietsen, skaten en het uitlaten van de hond). Alle voorzieningen, zoals scholen, gezondheidscentrum en winkels zijn nabij. De uitvalmogelijkheden naar Amsterdam zijn met zowel de auto als het openbaar vervoer ideaal.

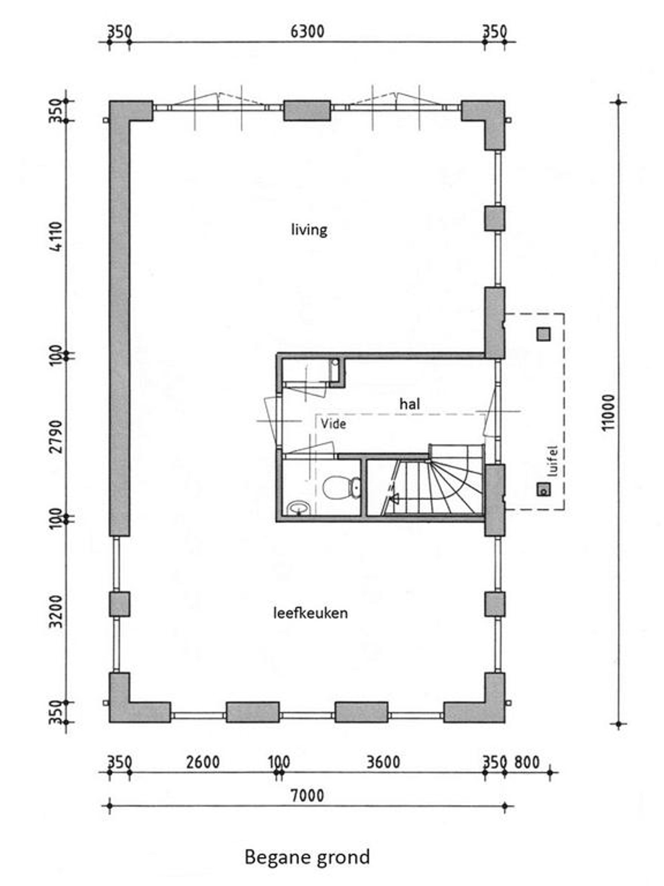
Indeling begane grond:

Keurig afgewerkte royale hal voorzien van vide, brede garderobe, meterkast met glasvezelaansluiting en een gestoffeerde trap naar de 1e verdieping.

Luxe toiletruimte geheel betegeld met moderne donkergrijze tegels en voorzien van vrij hangend closet met inbouwreservoir en toiletmeubel met fonteintje. Ook hier is de comfortabele vloerverwarming doorgetrokken.

Lichte leefkeuken voorzien van groot eiland en wandmodule, uitgevoerd met hoogglans witte fronten gecombineerd met zwart composiet werkblad. Voorts treft u een vrijstaande RVS side by side koel/vrieskast, een SIEMENS hete luchtoven, een SIEMENS magnetron, een SIEMENS 5-pits Turbo Boost inductiekookplaat, een Quooker Combi t.b.v. direct kokend water, een SIEMENS vaatwasautomaat en een stijlvolle RVS afzuigunit.

Ruime, lichte tuingerichte living voorzien van 2 x dubbele openslaande deuren met zicht op de zonnige achtertuin.

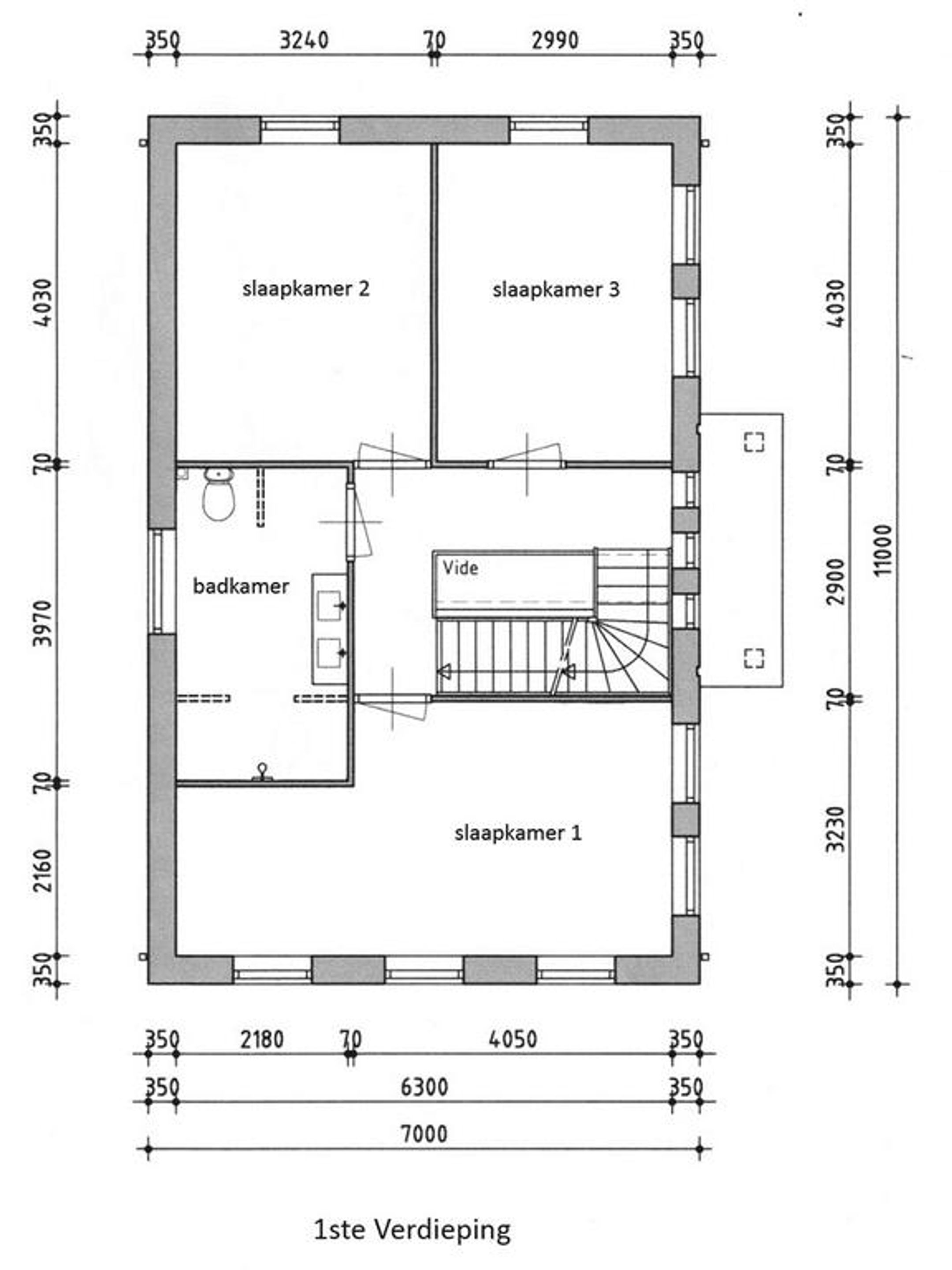
Indeling 1e verdieping:

Ruime, lichte overloop voorzien van speelse raampartij in de zijgevel en stijlvol gestoffeerd trappenhuis met vide.

3 in grootte variërende slaapkamers voorzien van fraai modern laminaat.

Luxe en zeer complete badkamer geheel betegeld met moderne donkergrijze tegels voorzien van vloerverwarming. Plafond glad gestukt en voorzien van inbouwspots. Raam zorgt voor wenselijk daglicht en ventilatie. U beschikt over een brede inloopdouche voorzien van hardglazen deur, rvs afvoerdrain, regendouche, handdouche, thermostaatkraan en geïntegreerde vakken t.b.v. de doucheproducten. Voorts treft u een breed badmeubel voorzien van 2 geïntegreerde waskommen, 2 brede lades en spiegelkast met verlichting, 2 wandkasten t.b.v. extra bergruimte, vrij hangend closet met inbouwreservoir en hoge designradiator.

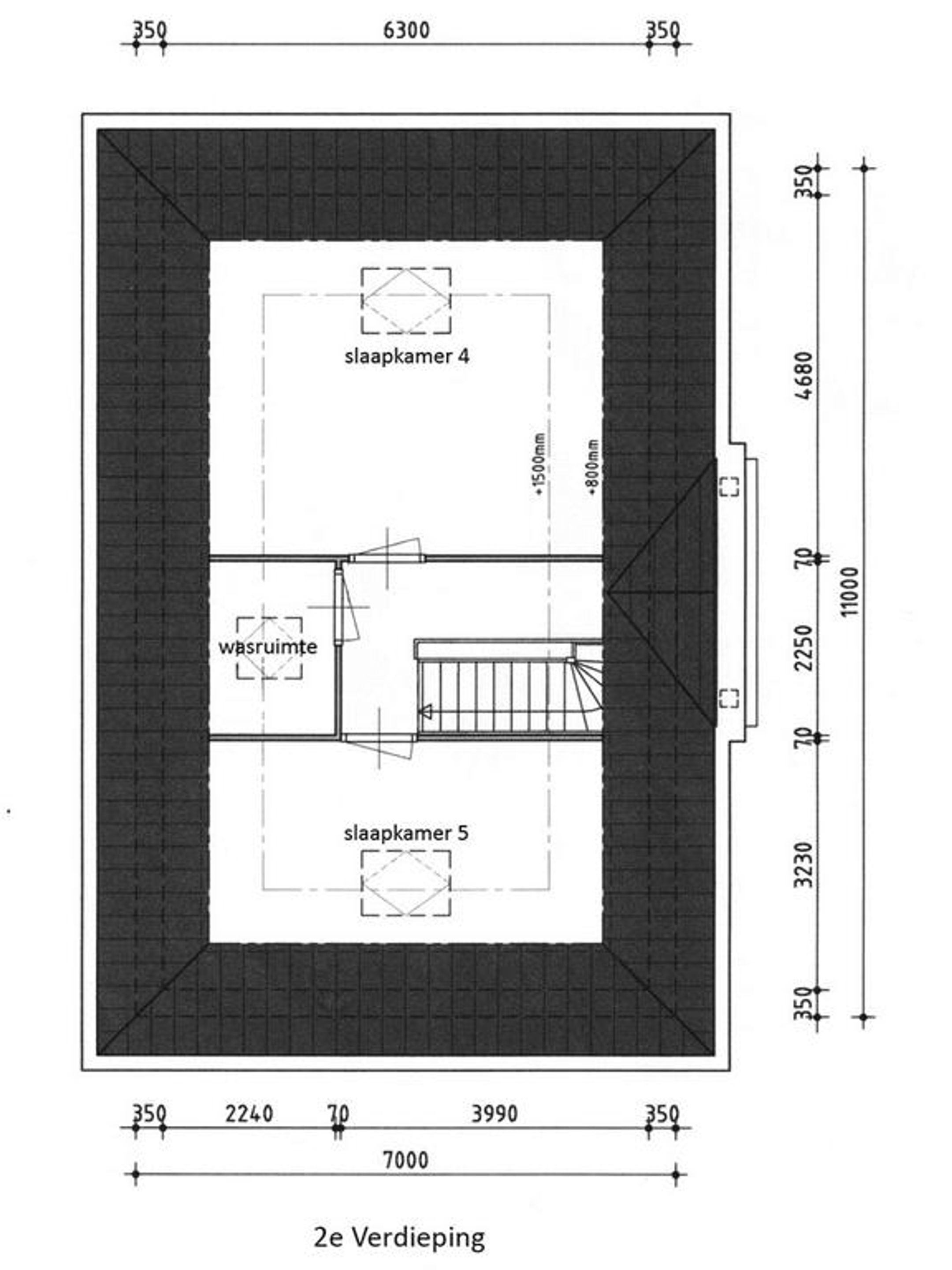
Indeling 2e verdieping:

Ruime overloop.

2 in grootte variërende slaapkamers voorzien van VELUX dakramen en fraai laminaat.

Praktische separate wasruimte voorzien van aansluitingen voor wasmachine en droogautomaat. Tevens bevind zich hier de mechanische ventilatie unit en is er een VELUX dakraam geplaatst.

Extern:
De woning kenmerkt zich door de handgevormde metselstenen, brede overstekken, zinken hemelwaterafvoeren, grote raampartijen rondom en overdekte entree voorzien van stijlvolle luifel met fraaie kolommen.
De royale zonnige tuin is ingericht met een breed zonneterras langs de achtergevel, een 2de terras t.p.v de sfeervolle overkapping, een gazon, diverse beplanting, houten berging, diverse licht- en elektrapunten en een praktische buitenkraan.

Belangrijkste kenmerken:
- stijlvolle vrijstaande woning aan de rand van de wijk met zicht op bosrand;
- entree voorzien van stijlvolle luifel met fraaie zware kolommen;
- royale tuingerichte living met 2x dubbele openslaande deuren;
- luxe leefkeuken met eiland voorzien van alle wenselijke inbouwapparatuur;
- 5 in grootte variërende slaapkamers;
- complete, moderne badkamer voorzien van vloerverwarming;
- praktische separate wasruimte;
- gehele begane grond voorzien van stijlvol laminaat met daaronder comfortabele vloerverwarming;
- hardhouten binnen- en buitenkozijnen;
- gehele woning voorzien van stijlvolle binnendeuren;
- ruim trappenhuis voorzien van stijlvolle vide;
- brede achtertuin gericht op het zuiden voorzien van sfeervolle overkapping;
- aanvaarding in overleg.
Lees de volledige omschrijving

Kenmerken

Algemeen

vraagprijs
€ 480.000 kosten koper
Aangeboden sinds
6+ maanden
Status
Verkocht
Aanvaarding
In overleg
Soort woonhuis
Villa, vrijstaande woning
Soort bouw
Bestaande bouw
Bouwjaar
2013
Soort dak
Pannen
Ligging
Aan bosrand, aan rustige weg, in woonwijk

Oppervlakten en inhoud

Wonen
159 m²
Gebouwgebonden Buitenruimte
3 m²
Externe bergruimte
9 m²
Perceel
282 m²
Inhoud
544 m³

Indeling

Aantal kamers
6 kamers (5 slaapkamers)
Aantal badkamers
1 badkamer
Badkamervoorzieningen
Douche, dubbele wastafel, toilet
Aantal woonlagen
3
Voorzieningen
Dakraam, glasvezel kabel, mechanische ventilatie, tv kabel

Energie

Energielabel
A
Isolatie
Volledig geisoleerd
Verwarming
Stadsverwarming, vloerverwarming gedeeltelijk
Warm water
Centrale voorziening

Kadastrale gegevens

Perceelnaam
Almere W 2642
Oppervlakte
282 m²
Eigendomssituatie
Volle eigendom
Perceel
AMR04-W-2642

Buitenruimte

Tuin
Achtertuin, tuin rondom, voortuin, zijtuin
Achtertuin
120 m²
Ligging tuin
Zuid

Parkeergelegenheid

Soort parkeergelegenheid
Openbaar parkeren
Bekijk alle kenmerken

Overige media