LET OP, deze woning wordt u aangeboden met een bieden-vanaf prijs van € 550.000,- k.k.
In één van de meest geliefde lanen van het VILLAPARK ALMERE-HOUT staat deze zeer verrassend ruime STIJLVOLLE VRIJSTAANDE VILLA (T-kap) op een kavel van 892 m2 met brede hout- en boswal. Dit type woning is één van de weinige types in het park welke ruimte kan bieden aan 6 kamers waarvan 4 tot 5 slaapkamers. De drie grote raampartijen met dubbele openslaande deuren garanderen u altijd een lichte living, ook op de donkere dagen en een heerlijk uitzicht op de royale tuin (op het zuiden) en de groene woonomgeving. Op eigen terrein is ruim voldoende parkeergelegenheid voor meerdere auto's. In de directe omgeving bevindt zich de 27-holes Golfbaan en de boswachterij Almeerderhout met vele fiets- en wandelpaden. Ook de uitvalswegen richting Utrecht en Amsterdam zijn gemakkelijk en snel te bereiken. Kortom een villa met veel ruimte in een schitterende groene woonomgeving!
Indeling:
Begane grond Ruime hal welke toegang biedt tot de garderobe, de meterkast, de toiletruimte, de ruime inpandige garage, de royale living en de trapopgang naar de 1e verdieping. De vloer is voorzien van een Eiken houten parket in visgraatmotief. De toiletruimte is betegeld met lichte tint wand- en vloertegels en voorzien van closet en fonteintje. De ruime en praktische garage is voorzien van overheaddeur. De zijramen dragen zorg voor wenselijk daglicht. Een deur in de achtergevel biedt toegang tot de zeer royale achtertuin. De garage biedt heerlijk veel bergruimte maar kan tevens bij de woning betrokken worden als zijnde een werk- of hobbykamer.
De living is heerlijk ruim, licht en verdeeld in een royale zithoek aan de achterzijde en een riante eetzone aan de voorzijde met aangrenzend de open keuken. Centraal treft u veel wenselijke verkeersruimte met dubbele openslaande deuren naar de tuin. De grote raampartij in de achtergevel is uitgevoerd met dubbele openslaande deuren waardoor u uw zonneterras en tuin kunt betreden. Zodra u deze deuren opent zult u de heerlijke rust, privacy en natuur ervaren. Rondom geniet u van prachtig zicht op uw tuin, boswal en de groene woonomgeving. De vloer is voorzien van een Eiken houten parket in stijlvol visgraat motief. De radiatoren zijn netjes omtimmerd. Er is ruimte voor het plaatsen van een grote zithoek.
U beschikt in deze woning over een fantastische lichte eetkeuken doordat ook aan de voorkant de woning is voorzien van een mooi breed gevel vullend raamkozijn. De grote ruimte is geschikt voor het plaatsen van een royale eethoek. De keuken staat opgesteld in een hoekopstelling en is uitgevoerd in room tint kaderfronten gecombineerd met een kunststof werkblad voorzien van waterkering. U beschikt over een 4-pits inductie kookplaat, een combi-ovenmagnetron (2017), een BOSCH vaatwasautomaat, een inbouw koelkast en een RVS spoelbak.
1e verdieping Over open hardhouten trap bereikt u de ruime overloop op de 1e verdieping welke u toegang biedt tot de ruime master-bedroom, 2 in grootte variërende slaapkamers, de badkamer, de separate toiletruimte en de praktische wasruimte. Op de vloer ligt een fraai laminaat.
De ruime badkamer is betegeld met lichte wand- en vloertegels en beschikt over een ligbad voorzien van separate handdouche, een douchecabine voorzien van glazen draaideur en thermostaatkraan, en dubbele wastafels voorzien van planchet, spiegels en verlichting. De ramen in de dakkapel dragen zorg voor wenselijk daglicht en ventilatie. Het toilet bevindt zich in de separate toiletruimte op de overloop.
De praktisch separate wasruimte is voorzien van een witte tegelvloer en uiteraard bevinden zich hier de aansluitingen van de wasmachine en wasdroger.
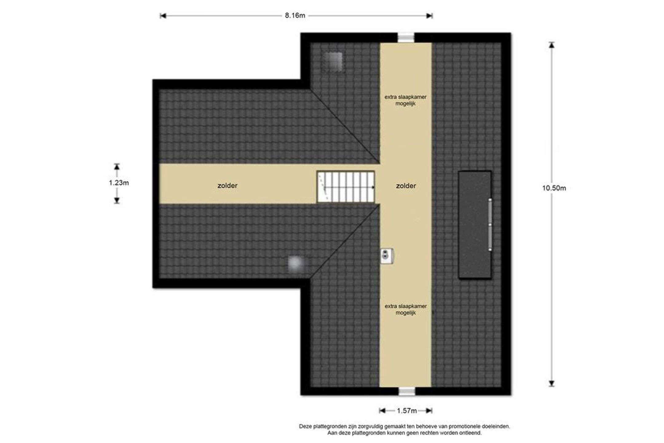
2e verdieping Over een hard houten trap bereikt u de verrassende ruime 2de verdieping welke is onder te verdelen in drie zones welke voortkomen uit de toegepaste T-kap constructie met stijl oplopende dakhelling. Er bestaat de mogelijkheid tot het creëren van 2 extra kamers. Thans is deze open ruimte benut als hobbykamer en ruime bergzolder. Tevens treft u hier de nieuwe (2018) mechanische ventilatie unit en de NEFIT ECOLINE HR ketel (2006) welke goed is onderhouden en ieder anderhalf jaar is voorzien van controle.
Extern Opmerkelijke stijlkenmerken van deze fraaie villa zijn de lichte tint gevels, de donker grijze betonpannen, de zinken goten en de fantastische grote raampartijen met roedeverdelingen rond de gehele woning. De voortuin is ingedeeld met een brede oprit voorzien van sierbestrating, gazon en borders met een diversiteit aan bomen en planten zoals een grote dennenboom en sierpluimen. Achter de woning, volledig aan het straatzicht onttrokken, ligt een prachtige royale brede en vooral diepe tuin. Deze ligt voornamelijk op het zuiden dus kunt u hier de gehele dag van het zonlicht genieten. De brede hout- en boswal zal het gevoel van het wonen in de natuur zeker versterken. Zo treft u een breed zonneterras langs de achtergevel t.p.v. de dubbele openslaande deuren. Voorts is de tuin grotendeels ingericht met een groot lager gelegen gazon en diverse ruime borders. Rondom wordt de tuin omsloten door natuurlijke groen erfscheidingen en de diepe boswal aan de achterzijde. Het houten tuinhuis in de tuin biedt u veel extra bergruimte voor uw tuingereedschap e.d. Uiteraard ontbreekt de buitenkraan niet.
Belangrijke kenmerken: - zeer karakteristieke vrijstaande villa; - veel lichtinval in living en woonkeuken door grote raampartijen; - ruime gezellige woonkeuken; - royale master-bedroom; - 3 in grootte variërende slaapkamers (mogelijkheid tot 5); - volwaardige 2e verdieping (2 extra kamers mogelijk); - ruime badkamer voorzien van ligbad en douchcabine; - royaal perceel van 892 m2 met diepe en brede boswal; - zeer royale zonnige achtertuin gelegen op het zuiden met veel privacy; - 12 Zonnepanelen met totale capaciteit van 3.300 WP. Bouwjaar 2017; - modern alarmsysteem; - cv ketel (2006) goed onderhouden door anderhalf jaarlijkse controle; - aanvaarding in overleg.
Gegarandeerd woongenot in prachtige groene woonomgeving!!!