Verkocht

Chamoisstraat 13 1339 GN Almere

Vraagprijs € 422.000 k.k.

Omschrijving

LET OP, deze gemoderniseerde luxe woning wordt u aangeboden met een bieden-vanafprijs.

Op een rustige locatie in de Regenboogbuurt staat deze UNIEKE ONDER ARCHITECTUUR GEBOUWDE GESCHAKELDE VILLA 'TOWER HOUSE' in een fraaie laan voorzien van bloesembomen. De opvallende vormgeving en de gebogen gevels zorgen voor een unieke beleving zowel buiten als binnen.
De woning biedt u een royale tuingerichte living voorzien van een massief ROBINIA planken vloer, een stijlvolle, luxe keuken voorzien van inbouwapparatuur van GAGGENAU en MIELE, een master-bedroom voorzien van eigen badkamer, vijf in grootte variërende slaapkamers, twee badkamers, een separate wasruimte/berging, een in 2017 compleet nieuw aangelegde zonnige achtertuin voorzien van bijzondere beplanting zoals oude olijfbomen, palmbomen en een overkapping voorzien van verlichting en terrasheater.
Op loopafstand bevindt zich o.a. het Meridiaanpark, het grootste groenpark van Almere Buiten. Maar ook supermarkten, gezondheidscentra, scholen, kinderdagopvang, NS-station, diverse speelgelegenheden en de Lage Vaart bevinden zich in de directe omgeving!

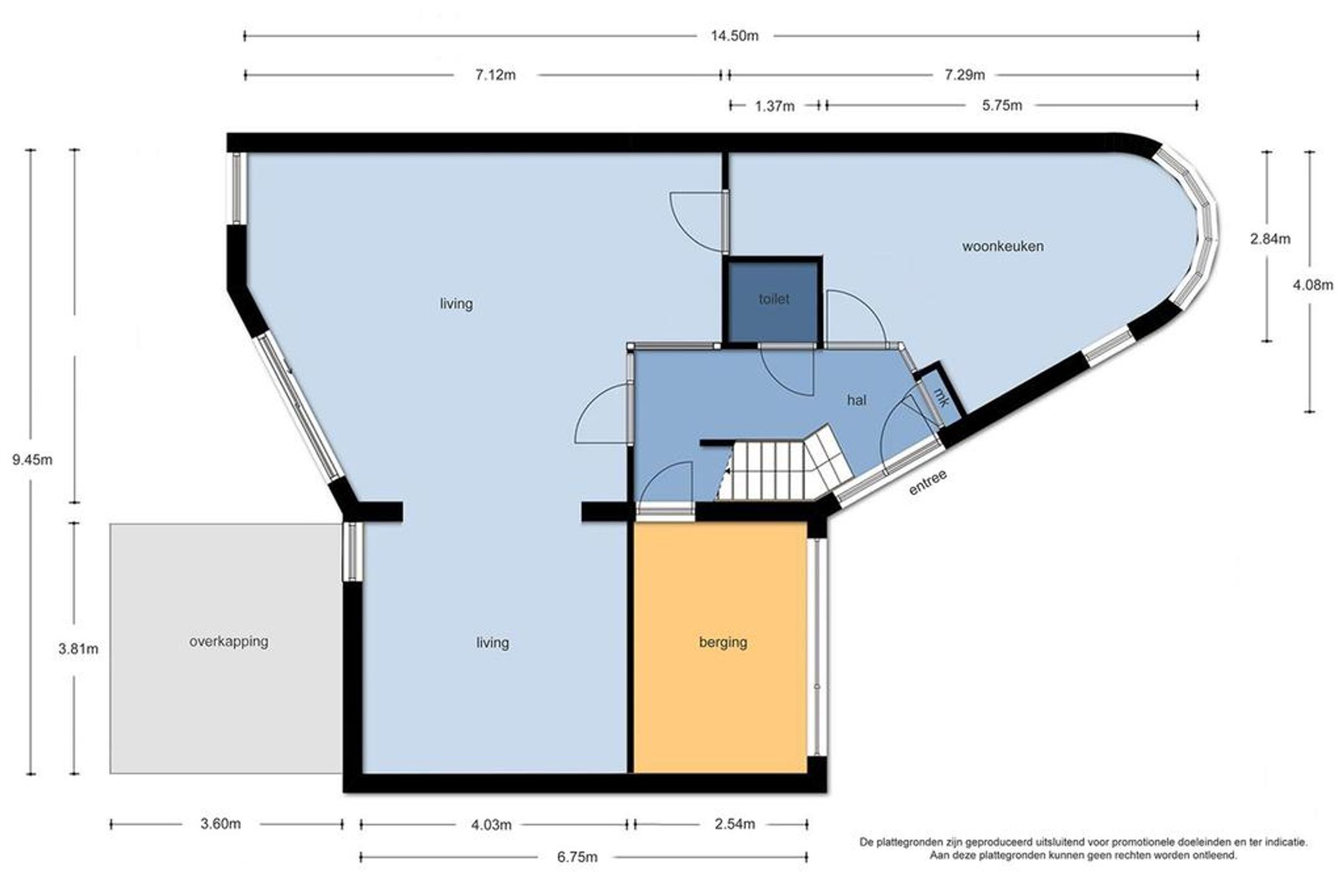
Begane grond
Royale, hoge en lichte hal welke toegang biedt tot de garderobe, de meterkast, de berging/wasruimte, de toiletruimte, de luxe woonkeuken, de tuingerichte living en de trapopgang naar de 1e verdieping.
Het speelse hoge plafond voorzien van hoogoplopende raampartij, t.p.v. de entree, dragen zorg voor veel lichtinval en een bijzonder ruimtelijk karakter. Op de vloer ligt een massief ROBINIA planken vloer doorlopend naar de living en de woonkeuken.

De garage is opgesplitst in een ruime praktische bergruimte en het grootste deel is bij de living betrokken. Hierdoor is een unieke ruime living ontstaan. Op de vloer van de berging liggen vloertegels. Er is veel ruimte voor het plaatsen van stellingen en hier bevinden zich de aansluitingen voor de wasmachine en de wasdroger.

Het plafond in de toiletruimte is glad gestukt en voorzien van inbouwspots. De wanden zijn tot het plafond betegeld met moderne witte wandtegels. Op de vloer liggen grote vloertegels. Voorts treft u een vrijhangend closet voorzien van inbouwreservoir en een fonteintje.

Het plafond en de wanden in de ruime tuingerichte living zijn glad gestukt. Op de vloer ligt een massief ROBINIA planken vloer. De brede hefschuifpui biedt toegang tot de zonnige achtertuin. Tijdens een grondige verbouwing is de achterzijde van de garage bij het woongedeelte betrokken waardoor er een uitzonderlijk ruime en brede living is ontstaan. Deze extra ruimte wordt thans benut als royale TV kamer en de oorspronkelijke living als royale gezellige eetkamer welke ruimte biedt aan een zeer grote eethoek.

De stijlvolle en luxe woonkeuken bereikt u via de living alsmede de hal. De wanden en het plafond zijn glad gestukt en het plafond is afgewerkt met een stijlvolle plafondplint voorzien van inbouwspots. De rondlopende kopgevel en raampartij dragen zorg voor een ruimtelijk en speels effect. Er is ruimte voor het plaatsen van een tweede eethoek.
De luxe keuken staat opgesteld in een langgerekte lage module en een hoge module voorzien van diverse apparatuur van het luxe merk GAGGENAU. U beschikt over veel bergruimte in de brede verlichte lades. De keuken is uitgevoerd met hoogglans witte fronten gecombineerd met een grijs composiet werkblad. Ook de fraaie dubbele cilindervormige afzuigunits van FRANKE zorgen voor een luxe en moderne uitstraling. Voorts beschikt deze stijlvolle en luxe keuken van een GAGGENAU stoomoven, een GAGGENAU bakoven, een GAGGENAU magnetron, een SIEMENS inbouwkoelkast, een MIELE vaatwasser (2017), een QUOOKER (2018) en een RVS spoelbak voorzien van voedselvermaler (2018).

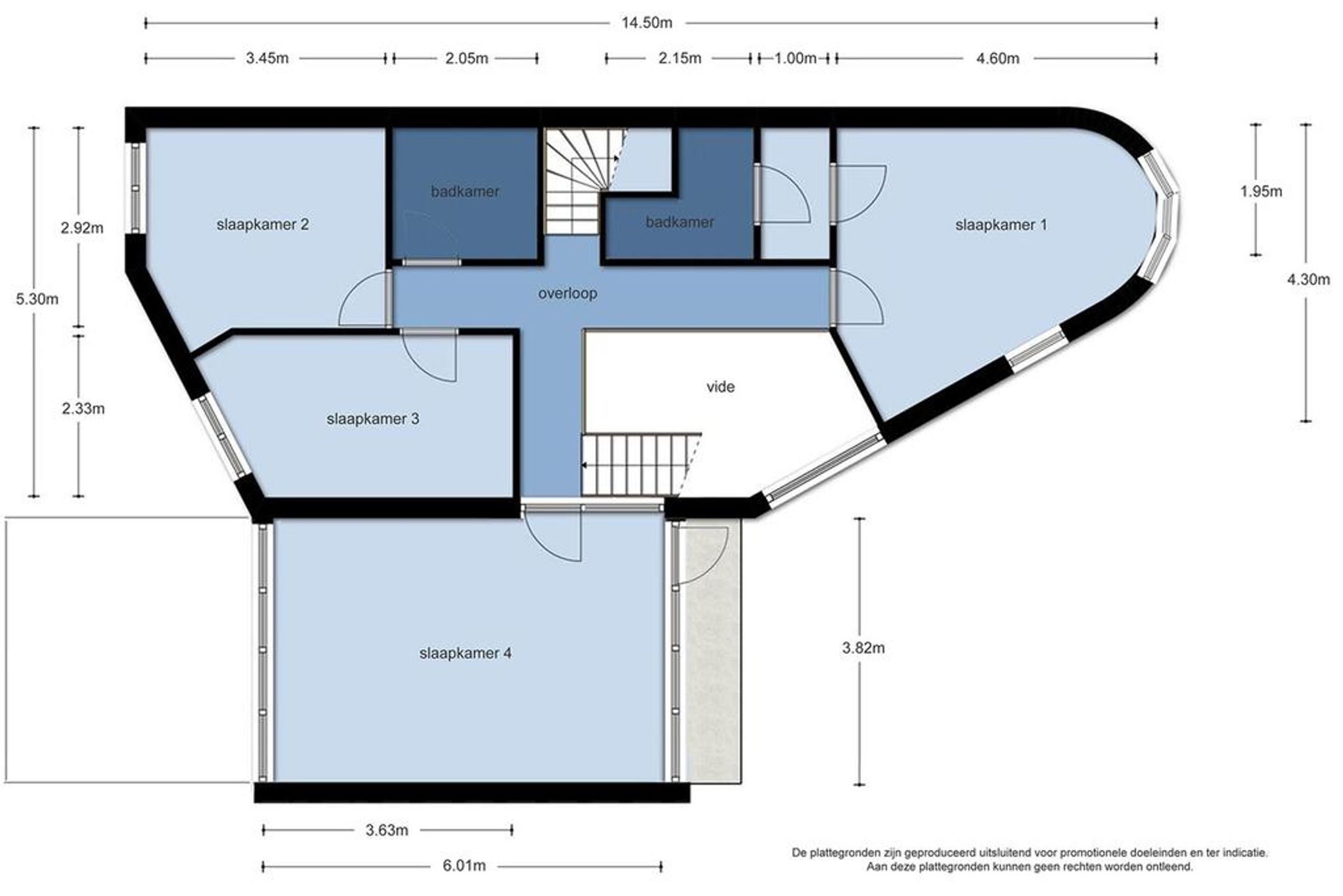
Eerste verdieping
Over een dichte trap voorzien van comfortabel tapijt bereikt u de ruime overloop van de eerste verdieping welke toegang biedt tot master-bedroom voorzien van eigen badkamer, drie in grootte variërende ruime slaapkamers, de tweede badkamer en de trapopgang naar de tweede verdieping. Dankzij de hoge raampartij en de vide is deze overloop heerlijk ruim en licht. Op de vloer ligt een fraai laminaat doorlopend naar de kamers.
De ruimte boven de garage is volledig benut voor een opbouw (2016) t.b.v. een extra ruime slaapkamer. Deze kamer is voorzien van glad plafond en gladde wanden en een vloer van Eikenhout. Een deur biedt toegang tot het "balkon".

De royale master-room is voorzien van eigen badkamer. Deze is tot het plafond betegeld met moderne witte wandtegels. Het plafond is glad gestukt en voorzien van inbouwspots. Op de vloer liggen grote vloertegels. In een nis zijn planken gecreëerd t.b.v. handdoeken en accessoires. Veder is deze badkamer ingericht met een inloopdouche voorzien van dubbele glazen deuren, regendouche, separate handdouche en thermostaatkraan, een badmeubel met geïntegreerde waskom, twee lades en spiegelkast, en een vrijhangend closet voorzien van inbouwreservoir.

Het plafond in de tweede badkamer is tevens glad gestukt en voorzien van inbouwspots. De wanden zijn betegeld met moderne witte wandtegels gecombineerd met grote vloertegels. Verder is deze moderne badkamer ingericht met een douche voorzien van glazen wand en draaideur, een badmeubel voorzien van geïntegreerde waskom, twee lades en spiegel, een vrijhangend closet met inbouwreservoir. en een fonteintje.

Tweede verdieping
Achter een schuifdeur op de overloop bevindt zich de trap voorzien van comfortabel tapijt welke toegang biedt tot de tweede verdieping en tevens een royale vijfde slaapkamer. De ronde kopgevel en raampartij dragen zorg voor een speels effect. Een deur biedt toegang tot het dakterras. Op de vloer ligt een fraai laminaat en er is een airconditioning geplaatst.
Tevens heeft u vanuit deze ruimte toegang tot de afgesloten technische ruimte waar zich de nieuwe MV unit (2018) en de REMEHA CV ketel (2011) bevinden.

Extern
De woning kenmerkt zich door de moderne ronde kopgevel, het torentje, de gestukte gevels, de rondlopende raampartijen en de dakopbouw. Links bevindt zich de garage en de oprit.
De stijlvolle en zonnige achtertuin is in 2017 opnieuw aangelegd en kenmerkt zich door de grote terrassen, de grote tegels, siergrind, de grote overkapping voorzien van verlichting en terrasheater, de verhoogde borders voorzien van bijzondere beplanting en de fraaie houten schermen rondom gecombineerd met muursteenkorven. Eyecatchers in deze fraaie tuin zijn toch wel de oude olijfbomen en de palmbomen welke indien gewenst achterblijven. De houten berging biedt veel extra bergruimte. Aan de zijkant is de buitenkraan geplaatst.

Belangrijke kenmerken:
• Onder architectuur gebouwde geschakelde villa in mooie straat voorzien van bloesembomen
• Parkeerplaats op eigen erf met verbreedde oprit en buitenkraan
• In 2016 opbouw geplaatst op garage t.b.v. extra vijfde slaapkamer
• Ruime, hoge en lichte hal voorzien van hoogoplopende raampartij en vide
• Royale glad gestukte living voorzien van massief ROBINIA planken vloer
• Luxe en stijlvolle woonkeuken voorzien van apparatuur van GAGGENAU en MIELE/SIEMENS
• Vijf in grootte variërende slaapkamers
• Twee moderne badkamers
• Master-bedroom voorzien van eigen badkamer
• Glad gestukte wanden en plafonds voorzien van inbouwspots
• MV unit vernieuwd in 2018
• Groot dakterras
• Stijlvolle achtertuin in 2017 opnieuw aangelegd met als eyecatchers oude olijfbomen en palmbomen
• Overkapping voorzien van verlichting en terrasheater
• Buitenschilderwerk 2019
• Gevels in 2019 voorzien van nieuwe KEIM laag
• Aanvaarding in overleg.
Lees de volledige omschrijving

Kenmerken

Algemeen

vraagprijs
€ 422.000 kosten koper
Aangeboden sinds
6+ maanden
Status
Verkocht
Aanvaarding
In overleg
Soort woonhuis
Villa, geschakelde woning
Soort bouw
Bestaande bouw
Bouwjaar
1997
Soort dak
Bitumineuze dakbedekking
Ligging
Aan rustige weg, in woonwijk

Oppervlakten en inhoud

Wonen
184 m²
Overige inpandige ruimte
10 m²
Gebouwgebonden Buitenruimte
55 m²
Externe bergruimte
5 m²
Perceel
245 m²
Inhoud
654 m³

Indeling

Aantal kamers
7 kamers (5 slaapkamers)
Aantal badkamers
2 badkamers
Badkamervoorzieningen
Douche, toilet, wastafel, wastafelmeubel
Aantal woonlagen
3
Voorzieningen
Airconditioning, glasvezel kabel, mechanische ventilatie, schuifpui

Energie

Isolatie
Dakisolatie, dubbel glas, hr glas, muurisolatie, vloerisolatie, volledig geisoleerd
Verwarming
Cv ketel
Warm water
Cv ketel
Cv-ketel
REMEHA ( gestookt combiketel uit 2011, eigendom)

Kadastrale gegevens

Perceelnaam
Almere B 1460
Oppervlakte
245 m²
Eigendomssituatie
Volle eigendom
Perceel
AMR04-B-1460

Buitenruimte

Tuin
Achtertuin, voortuin
Achtertuin
105 m²
Ligging tuin
Noord

Parkeergelegenheid

Soort parkeergelegenheid
Op eigen terrein, openbaar parkeren
Bekijk alle kenmerken