Verkocht

Geelgorslaan 7 1343 AD Almere

Vraagprijs € 650.000 k.k.

Omschrijving

KARAKTERISTIEKE VILLA gelegen in het villapark ALMERE-HOUT waar uw woongenot samensmelt met natuur, rust en ruimte. Golfers kunnen hun hart ophalen op het naastgelegen golfterrein van Golfclub Almeerderhout. De villa is ideaal gesitueerd op royaal perceel van 816 m2 met een brede zonnige tuin ideaal gelegen op het zuiden. De aanwezigheid van de hout- en boswallen zorgen voor een hoge graad van privacy en rust. De villa is uitstekend onderhouden en in 201/2017 op vele fronten gemoderniseerd. Garage is verbouwd tot ruime werkkamer en bijkeuken, terrassen en voortuin zijn opgehoogd, er zijn 16 zonnepanelen geplaatst, cv-ketel en mv-box zijn vervangen, Al het schilderwerk binnen en buiten zijn in 2017 nieuw uitgevoerd, er is een sproei installatie aangelegd, enz. enz.
Voorts biedt de woning u een prachtige ruime en lichte hal, een royale tuingerichte living met houtgestookte haard, een zeer complete moderne keuken, comfortabele vloerverwarming, een ruime werkkamer, een praktische bijkeuken, 3 slaapkamer, een gemoderniseerde badkamer en veel bergruimte op de vliering en de inpandige berging.

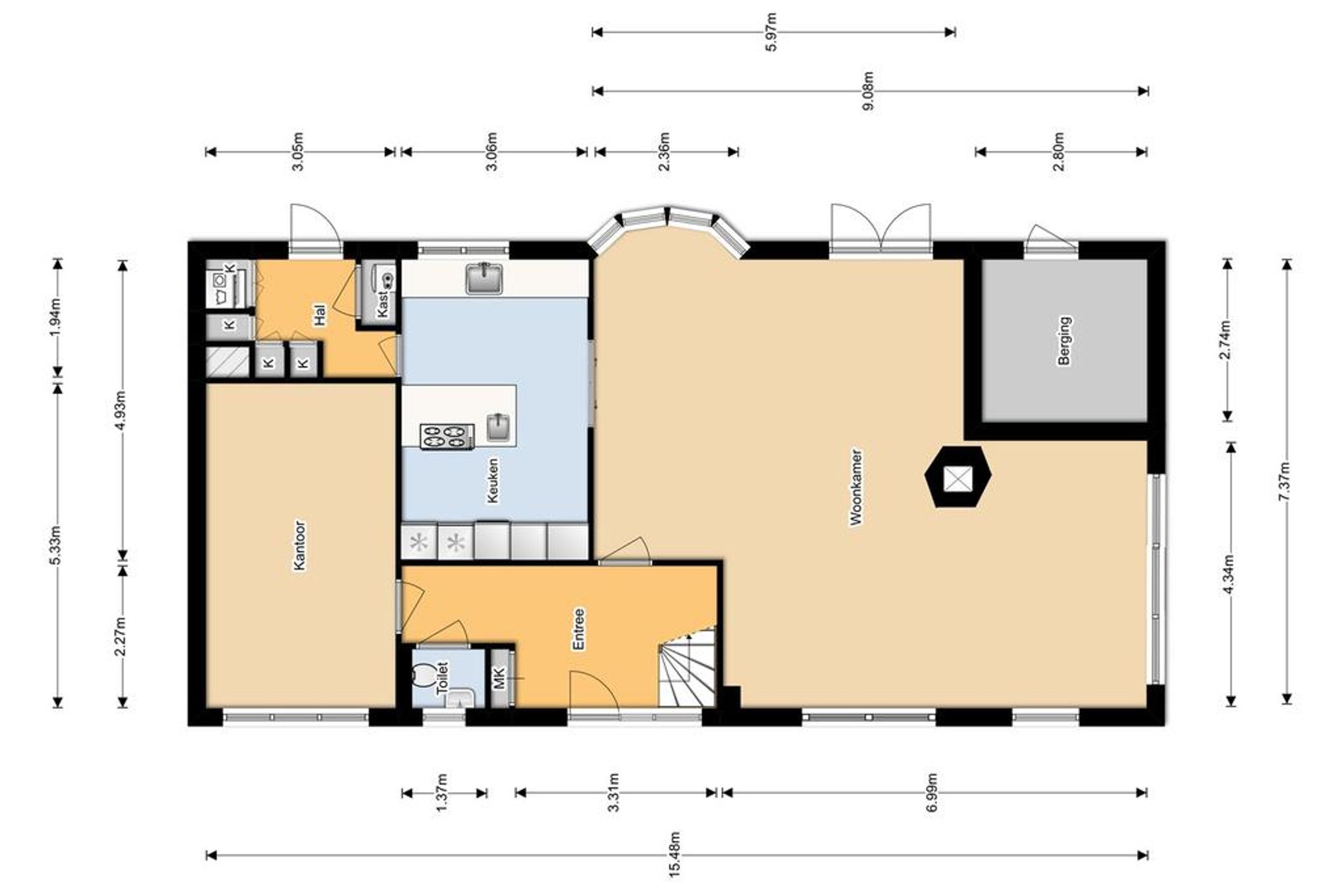
Indeling

Hal
Hoog oplopende raampartij. Spachtelputz wanden, antraciet grijze vloertegels met bijbehorende plint en met vloerverwarming als hoofdverwarming. Hardhouten open trap. Houten binnenkozijnen met stompe paneeldeuren.
Toegang tot living, toilet, meterkast, werkkamer en trap naar verdieping.
Toilet met nieuw vrij hangend Villeroy en Boch closet, geheel wit betegeld, antraciet vloertegels, glad gestuukt plafond met inbouwspot.

Living
Ruime living, afgewerkt met antraciet vloertegels met daaronder comfortabele vloerverwarming (hoofdverwarming), fijn spachtelputz wanden, glad gestuukt plafond. Grote raampartijen rondom t.b.v. veel daglicht en zicht op eigen tuin en groene woonomgeving. Halfronde erker en dubbele openslaande deuren aan tuinzijde. Centraal in de living staat een moderne hout gestookte haard.
De royale living biedt ruimte aan een ruime zithoek alsmede een grote eethoek. Aansluitingen voor luidsprekers zijn in wanden weggewerkt.

Keuken
Door dubbele schuifdeuren toegang tot ruime moderne keuken. Hoogglans fronten gecombineerd met graniet werkbladen, zij- en achterwanden. Totaal bestaat uit hoge wandmodule, centraal kookeiland en lange wandopstelling met spoelgedeelte. Raam aan tuinzijde. Glad plafond met inbouespots.TV aansluiting, brede berglades, bar met 3 krukken. Moderne brede ITHO afzuigschouw, 4-pits gaskookplaat met wokbrander, ATAG hoge inbouwkoelkast en vrieskast met 6 vrieslades, SIEMENS stoomoven, ATAG vaatwasser, een brede rvs spoelbak en een tweede spoelbak in kookeiland.
Deur naar aangrenzende bijkeuken.

Bijkeuken
Keurig afgewerkte bijkeuken met doorlopende antraciet vloertegels. Fijn spachtelputz op de wanden. Glad afgewerkt plafond. Moderne kastenwand met praktische inrichting, royale apothekerskast en t.b.v. voorraden en ruimte voor opstelling van wasmachine en droogautomaat.
In hoek kast staat de VAILLANT (2017) cv-ketel opgesteld alsmede de verdeler van de vloerverwarming. Door deur in achtergevel betreedt u de zonnige tuin.

Werkkamer
In 2017 is de oorspronkelijke garage omgebouwd tot ruime werkkamer en bijkeuken. Garagedeur is vervangen door stijlvol rondlopend kozijn. Wanden en plafond zijn glad gestuukt en voorzien van inbouwspots. Er is een moderne tegelvloer gelegd met vloerverwarming. Kamer biedt veel ruimte aan bureau(s) en veel bergkasten.

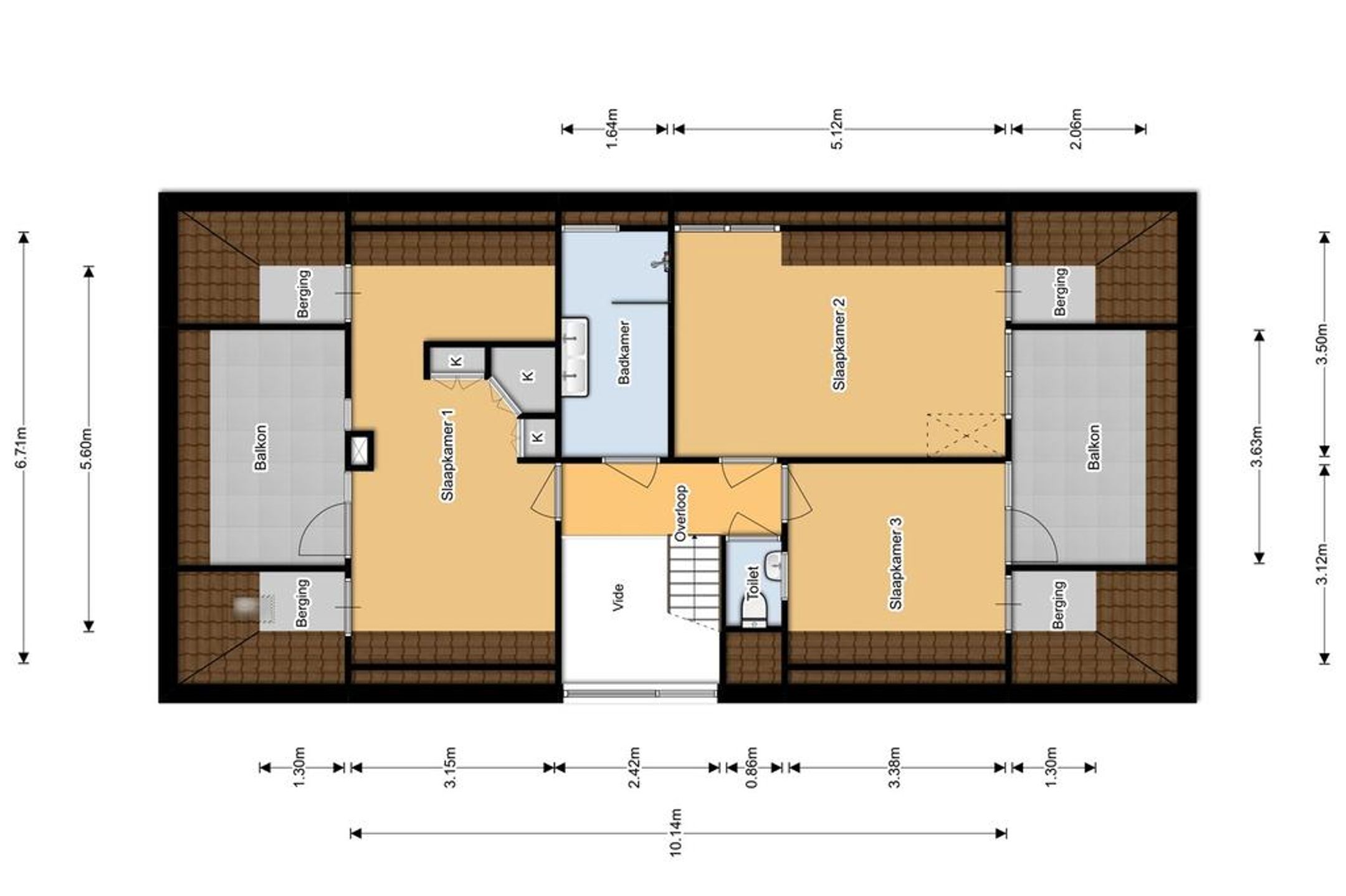
Verdieping
Over open hardhouten trap bereikt u de overloop welke eveneens zicht biedt op de fraaie entree. De indeling op de verdieping is aangepast t.b.v. grotere slaapkamers. U beschikt over 3 in grootte variërende slaapkamers, een moderne badkamer, separaat toiletruimte en 2 balkons. Op overloop en slaapkamers ligt zachte vloerbedekking. Alle plafonds en schuine wanden in de kamers zijn afgewerkt met fijn schuurwerk (2016).

Slaapkamers 1
De grote slaapkamer links biedt veel ruimte en is tevens voorzien van 5-deurs garderobekast. Achter deze kast treft u extra kastruimte. Toegang tot de brede loggia welke prachtig zicht biedt aan groende woonomgeving. De loze hoeken in de kap naast de loggia zijn benut als extra bergruimte. Eén berging is voorzien van dakraam.

Slaapkamers 2
Deze kamer is door de indelingsverandering veel groter geworden en kan daarom master-bedroom genoemd worden. Door de dakkapel geniet u van zicht op de prachtige tuin. In het plafond zijn spots aangebracht en in de wand treft u aansluitingen voor de tv. De loze hoek in de kap is benut als extra bergruimte. Op de vloer ligt zachte vloerbedekking.

Slaapkamers 3
Deze slaapkamer is eveneens keurig afgewerkt en heeft toegang tot de loggia aan de rechter zijde.
Extra bergruimte treft u achter het knieschot en de extra bergruimte in de hoek van de kap. Op de vloer ligt zachte vloerbedekking.

Badkamer
De badkamer is heerlijk ruim, licht, compleet en geheel uitgevoerd met witte wandtegels en antraciet vloertegels met elektrische vloerverwarming.
U beschikt hier over een inloopdouche met nieuw (2016) douchegarnituur met thermostaatkraan, regen- en handdouche en waterval. Hardglazen douchewand, glad afgewerkt plafond met inbouwspots en designradiator. Wasmeubel met geïntegreerde waskom, twee lades, spiegel met led verlichting en hoge bergkast links. Daglicht en ventilatie wordt geboden door het raam aan de achterzijde.

Toilet
Toilet met nieuw vrij hangend Villeroy en Boch closet, geheel wit betegeld, antraciet vloertegels, glad gestuukt plafond met inbouwspot. Tevens is hier voorzien in verwarming.

Vliering
Over de gehele lengte en breedte beschikt de woning over een beloopbare bergvliering. U bereikt deze door de houten vlizotrap op de 1e verdieping.

Berging
Vanuit de tuin heeft u ook toegang tot de ruime inpandige berging welke achter de living is gesitueerd. U beschikt hier over veel praktische bergruimte t.b.v. uw tuinkussens en gereedschappen. Er is elektra aanwezig en tevens is hier de omvormer van de zonnepanelen geplaatst.

Extern
Deze karakteristieke villa staat op een ruim perceel van 816 m2 waarbij de ruime tuin gericht is op het heerlijke zuiden. Hierdoor geniet u de gehele dag van de zon en omdat de grote raampartijen op de tuin zijn gericht is het ook in de donkere maanden heerlijk ligt in de woning. Omreden van de ideale ligging zijn er 16 zonnepanelen op het dak geplaatst. Het grote zonneterras strekt zich langs de gehele achtergevel en aansluitend zijn grote brede borders aangelegd en centraal een groot gazon. U geniet veel rust en vooral privacy door de hoge volgroeide erfscheiding en de brede boswallen. Achter in de tuin is een tweede zonneterras gesitueerd en aan de zijkant staat de zoutwater jacuzzi (2016) opgesteld (ter overname). Rondom zijn buitenkranen geplaatst en ook elektrische stopcontacten alsmede een oplaadpunt voor de auto (ter overname). De gehele daklijn is voorzien van bliksemafleiding. Aan de voorzijde is ruimte voor het parkeren van 3 auto's.

Belangrijke kenmerken:
- zeer goed onderhouden stijlvolle villa
- fraaie hal met vide en hoge rondlopende raampartij
- grote living met centraal een houtgestookte haard
- 3 in grote variërende slaapkamers
- ruime bergvliering
- luxe en ruime inbouwkeuken uitgevoerd met hoogglans fronten en graniet werkbladen
- schilderwerk buiten rondom 2017
- schilderwerk binnen wanden en plafonds 2016
- terrassen en oprit opgehoogd in 2017
- nieuwe kasten bijkeuken 2017
- garage verbouwd tot werkkamer en bijkeuken in 2017
- nieuwe VAILLANT cv-ketel 2017
- nieuwe mechanische ventilatie unit met automatische schakeling 2018
- jacuzzi met zoutwater 2016 (ter overname)
- maairobot 2017 (ter overname)
- volledige begane grond vloerverwarming als hoofdverwarming
- gemoderniseerde badkamer met vloerverwarming
- rondom SKG4 veiligheidssloten
- alle ramen en kozijnen voorzien van Luxaflex Plissé Shade met verduistering en horren
- houten binnenkozijnen met stompe paneeldeuren
- 16 zonnepanelen incl. omvormer (reservecapaciteit voor 8 extra panelen)
- sproei installatie rondom met beregeningsautomaat (ter overname)
- rondom verlichting onder de overstekken
- prachtige ligging te midden van de uitgestrekte bossen
- direct gelegen naast Golfclub Almeerderhout
- ruim perceel van totaal 816 m2
- woonoppervlakte: 166 m2. Overige inpandige ruimte: 8 m2 Gebouw gebonden buiten: 15m2
- 5 kamers, 3(4) slaapkamers
Lees de volledige omschrijving

Kenmerken

Algemeen

vraagprijs
€ 650.000 kosten koper
Aangeboden sinds
6+ maanden
Status
Verkocht
Aanvaarding
In overleg
Soort woonhuis
Villa, vrijstaande woning
Soort bouw
Bestaande bouw
Bouwjaar
1991
Soort dak
Pannen
Ligging
Aan bosrand, aan rustige weg, beschutte ligging, in bosrijke omgeving, in woonwijk

Oppervlakten en inhoud

Wonen
166 m²
Overige inpandige ruimte
8 m²
Gebouwgebonden Buitenruimte
15 m²
Perceel
816 m²
Inhoud
650 m³

Indeling

Aantal kamers
5 kamers (3 slaapkamers)
Aantal badkamers
1 badkamer
Badkamervoorzieningen
Douche, dubbele wastafel
Aantal woonlagen
3
Voorzieningen
Dakraam, mechanische ventilatie, rookkanaal, tv kabel

Energie

Isolatie
Dakisolatie, dubbel glas, muurisolatie, vloerisolatie, volledig geisoleerd
Verwarming
Cv ketel, open haard, vloerverwarming gedeeltelijk
Warm water
Cv ketel
Cv-ketel
VAILLANT ( gestookt combiketel uit 2017, eigendom)

Kadastrale gegevens

Perceelnaam
Almere A 4
Oppervlakte
658 m²
Eigendomssituatie
Volle eigendom
Perceel
AMR04-A-4
Perceelnaam
Almere A 883
Oppervlakte
158 m²
Eigendomssituatie
Volle eigendom
Perceel
AMR04-A-883

Buitenruimte

Tuin
Achtertuin, tuin rondom, voortuin, zijtuin
Achtertuin
550 m²
Ligging tuin
Zuid
Bekijk alle kenmerken