Verkocht

Kramsvogellaan 5 1343 CC Almere

€ 950.000 k.k.

Omschrijving

“All you dream about, and much more”

Deze luxe, verrassend ruime en energie zuinige villa in villawijk ‘Vogelhorst II’ combineert de fraaie architectuur van de jaren ’30 met hoogwaardig materiaalgebruik, heeft een uitstekend afwerkingsniveau en een onweerstaanbare charme. De villa is maar liefst 13 meter lang, staat op een perceel van 591 m², heeft een uitstekende zonligging en een prachtig aangelegde achtertuin op het zuiden/zuidoosten. De riante woonkeuken en kamer maken de leefruimte beneden af. Er zijn maar liefst 5 slaapkamers, 2 luxe badkamers en een praktische thuiswerkplek waardoor dit echt een familiehuis is op een toplocatie in het populaire, bosrijke Almere-Hout.
Villapark ‘Vogelhorst II’ in Almere Hout is heel centraal gelegen op korte afstand van de uitvalswegen naar de A27 en de A6/A1 richting Amsterdam, het Gooi en Utrecht. Meerdere basisscholen, een gezondheidscentrum, tandartspraktijk en supermarkten zijn bereikbaar binnen 5 fietsminuten. Natuurliefhebbers kunnen volop genieten van de overvloedige flora en fauna langs de vele mooie wandel- en fietsroutes. De parkeerplaats van Golfclub Almeerderhout is slechts 3 minuten rijden en het vaarwater, dat in open verbinding staat met het Gooimeer, is heel aantrekkelijk voor de watersporter.

Deze woning wordt aangeboden met een vraagprijs van € 950.000,- k.k.
Biedingen vanaf € 900.000,- k.k. worden door verkopers in overweging genomen.

INDELING:

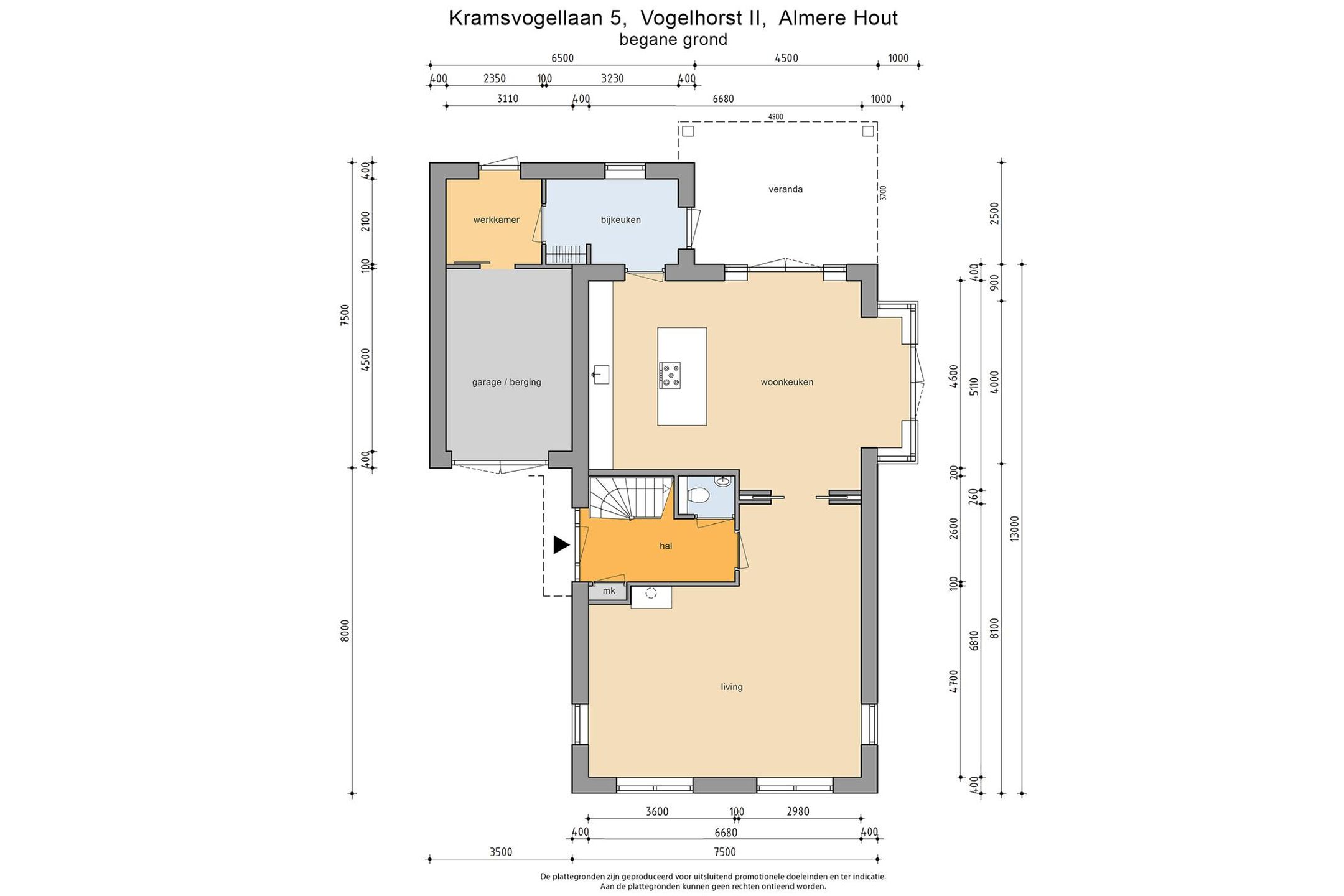
Begane grond
Parkeer uw auto op de oprit en loop naar de entree, gesitueerd aan de linkerzijde. In de ruime hal ziet u een mooie trapopgang met eikenhouten treden en de garderobe. Uw oog valt op de eiken visgraatvloer die niet alleen in de hal, maar ook in de woonkamer ligt. De wanden zijn glad gestuct en de paneeldeuren zijn voorzien van hardhouten kozijnen en klassiek deurbeslag. Achter een van de paneeldeuren is de stijlvolle, luxe toiletruimte met fonteintje gesitueerd.
De L-vormige woonkamer is een grote, lichte leefruimte die geheel als zitkamer ingericht kan worden. Blikvangers zijn de eiken visgraatvloer, dimbare wandverlichting, extra diepe natuursteen vensterbanken en de hoog rendement Barbas houtkachel. Door de grote ramen heeft u fraai uitzicht naar de tuin en de rustige laan.
Stijlvolle en-suite deuren verbinden de woonkamer met de zeer ruime woonkeuken van 34m2. Rondom deze deuren zijn op maat gemaakte kasten gemaakt en onder de grote, grijze keramische tegels ligt vloerverwarming. Aan twee kanten ziet u openslaande deuren naar de tuin en er is genoeg ruimte voor een grote eettafel, waardoor u hier met 8 tot 10 personen kunt eten.
Met een schuin oog kijkt u naar de luxe keukenopstelling met een groot kook-/ziteiland en een lange wandopstelling. De composiet aanrechtbladen zijn in een lichte kleur uitgevoerd en vele kasten zijn voorzien van praktische uittreklades en korven. Alle benodigde apparatuur, merendeels van Neff, is ingebouwd: een 4-pits gaskookplaat, plafond afzuigunit, vaatwasser, combi-stoomoven, warmhoudlade, een extra hoge inbouwkoelkast met vriesvak en een koffiemachine.
In de aangrenzende bijkeuken staat een kastenwand met een ingebouwde combi-magnetron, tweede koelkast en onder het grijze blad is ruimte voor de wasapparatuur. De nis is in gebruik als garderobe en er hangt een diepe spoelbak met mengkraan.
De bijkeuken grenst aan een werkkamer, die in verbinding staat met de garage. De werkkamer is een sfeervolle, rustige en lichte plek met mooi uitzicht naar de tuin. Open de schuifdeur naar de geheel geïsoleerde garage met dubbele houten garagedeuren naar de oprit. De ramen in de deuren zorgen voor lichtinval en in de garage ziet u de opstelling van de cv-ketel en de centrale stofzuigunit.

Eerste verdieping:
Volg de prachtige trap naar de overloop, waaraan drie slaapkamers grenzen. Net als op de begane grond zijn de wanden glad gestuct en op de hele verdieping ligt een eiken lamelparketvloer. Een Velux dakraam zorgt voor lichtinval en de witte paneeldeuren met klassiek deurbeslag worden omringd door hardhouten binnenkozijnen. Erg praktisch is de berging, gesitueerd naast de trap naar de tweede verdieping.
Aan de voorzijde is de zeer royale master bedroom van bijna 19 m². Openslaande deuren met plissé raambekleding geven toegang tot een Frans balkon en de garderobe is voorzien van op maat gemaakte garderobekasten. Vanuit de garderobe heeft u toegang tot de tweede badkamer met een inloopdouche, wastafelmeubel en een wandcloset.
Aan de achterzijde zijn twee slaapkamers van 13 en 12 m² die zeer geschikt zijn als kinderkamer, werkkamer of logeerkamer. Vanuit beide kamers heeft u prachtig uitzicht naar de tuin en de steile, schuine dakvlakken geven deze kamers veel sfeer. De tweede badkamer is ingedeeld met een ligbad, inloopdouche, wastafelmeubel en een wandcloset. Vele details maken beide badkamers zeer exclusief; zo ziet u hardglazen douchedeuren, Hotbath inbouw douchekraan, regendouche met losse handdouche, een spiegelkast met verlichting en een randloos wandcloset in beide badkamers.

Tweede verdieping:
Er is een vaste trap naar een overloop, waaraan twee ruime slaapkamers grenzen. Net als op de eerste verdieping ziet u glad gestucte muren, hardhouten binnenkozijnen en een eiken lamelparketvloer. De slaapkamer aan de voorzijde is circa 15 m² en de slaapkamer aan de achterzijde is maar liefst 21 m². Hiermee heeft deze villa 5 ruime slaapkamers, perfect voor een groot gezin en om logees in stijl te ontvangen.

Exterieur:
De villa, geïnspireerd op de jaren ’30, heeft een fantastische Oud Hollandse uitstraling. Donkere, handgevormde stenen vormen samen met de gevelbetimmeringen, detailleringen in het metselwerk en de natuurstenen dorpels een prachtig geheel. De dakgoten en hemelwaterafvoeren zijn van zink en de schuine daken zijn voorzien van vuilafstotende, gecoate dakpannen. Op het dakvlak aan de westkant liggen 14 zonnepanelen, wat zorgt voor een lagere energierekening.

Bijgebouwen:
Aan de achterzijde is een grote veranda gebouwd, voorzien van inbouwverlichting in het plafond en prachtig uitzicht naar de tuin. Achter in de tuin staat een bijgebouw van Douglashout, verdeeld in een berging van 14 m² en een overkapping van 9 m². De buitenzijde is afgewerkt met zwarte, gepotdekselde rabatdelen en in de berging is ruimte voor de fietsen, tuinkussens en uw gereedschap.

Tuin:
Aan de voorzijde ziet u een brede en diepe oprit, geschikt voor 4 auto’s. De gevarieerde beplanting in de voor- en zijtuin zorgt gedurende het hele jaar voor een fantastische uitstraling. Aan de linker- en rechterzijde is een afsluitbaar hekwerk geplaatst en de groene erfafscheiding zorgt voor veel privacy.
In de achtertuin heeft u volop ruimte om in de zon te zitten. Geniet van de veranda, het grote terras onder de moerbeibomen en de overkapping bij de berging. De bomen en beplanting in verschillende hoogtes geven de tuin volume en de bestrating van Oud Hollandse Schellevis tegels van 1 bij 1 meter is het toonbeeld van pure klasse.

Bijzonderheden:
• Uitgebreide meterkast met 12 groepen, 3 aardlekschakelaars, 3 fasen aansluiting (380 V beschikbaar), glasvezel aansluiting en een op afstand uitleesbare slimme meter;
• Verwarming en warm water via een HR-ketel (Remeha, 2019), deels met vloerverwarming;
• De centrale stofzuigunit (Snoek) heeft een extra groot vuilreservoir en slangaansluitingen in de woonkamer en op de overloop van de eerste én tweede verdieping. In de plint onder de keuken is een veegluik gemaakt;
• Uitstekend geïsoleerde, duurzame villa met een zeer hoog afwerkingsniveau;
• Hoogwaardig materiaalgebruik in de villa en de prachtige tuin;
• Maar liefst 5 slaapkamers, 2 luxe badkamers en een 3e los toilet;
• Parkeergelegenheid voor vier auto’s op eigen terrein;
• Prachtige ligging in een rustige straat zonder doorgaand autoverkeer;
• 14 zonnepanelen met een opbrengst van ca. 3300 kWh per jaar;
• Energielabel A, geldig tot 31-13-2030.

Uitzonderlijke maatvoering:
• Woonoppervlak ca. 192 m²;
• Overige inpandige ruimte ca. 14 m² (berging);
• Gebouw gebonden buitenruimte ca. 17 m² (veranda);
• Externe bergruimte ca. 14 m² (buitenberging);
• Bruto volume ca. 715 m³;
• Perceeloppervlakte 591 m².

Lees de volledige omschrijving

Kenmerken

Algemeen

Prijs
€ 950.000 kosten koper
Aangeboden sinds
6+ maanden
Status
Verkocht
Aanvaarding
In overleg
Soort woonhuis
Villa, vrijstaande woning
Soort bouw
Bestaande bouw
Bouwjaar
2019
Soort dak
Pannen
Ligging
Aan park, aan rustige weg, in bosrijke omgeving, in woonwijk

Oppervlakten en inhoud

Wonen
192 m²
Overige inpandige ruimte
14 m²
Gebouwgebonden Buitenruimte
17 m²
Externe bergruimte
14 m²
Perceel
591 m²
Inhoud
715 m³

Indeling

Aantal kamers
8 kamers (5 slaapkamers)
Aantal badkamers
2 badkamers
Badkamervoorzieningen
Inloopdouche, ligbad, toilet, vloerverwarming, wastafel, wastafelmeubel
Aantal woonlagen
3
Voorzieningen
Alarminstallatie, dakraam, frans balkon, glasvezel kabel, mechanische ventilatie, rookkanaal, tv kabel, zonnepanelen

Energie

Energielabel
A
Verwarming
Cv ketel, houtkachel, open haard, vloerverwarming gedeeltelijk
Warm water
Cv ketel
Cv-ketel
REMEHA (gas gestookt combiketel uit 2019, eigendom)

Kadastrale gegevens

Perceelnaam
Almere A 987
Oppervlakte
591 m²
Eigendomssituatie
Volle eigendom
Perceel
AMR04-A-987

Buitenruimte

Tuin
Achtertuin, tuin rondom, voortuin, zijtuin
Achtertuin
267 m²
Ligging tuin
Zuid

Garage

Capaciteit
1 auto
Voorzieningen
Elektra, water

Parkeergelegenheid

Soort parkeergelegenheid
Op eigen terrein, openbaar parkeren
Bekijk alle kenmerken

Overige media