Verkocht

W.M. Dudokstraat 6 1333 LR Almere

Vraagprijs € 400.000 k.k.

Omschrijving

LET OP!
Deze woning wordt u aangeboden met een bieden-vanaf prijs van € 400.000,- k.k.
De vraagprijs is € 430.000,- k.k.

Zeer royaal GESCHAKELDE WONING met aangrenzende ruime MULTIFUNCTIONELE BEDRIJFSRUIMTE van maar liefs 75m2 voorzien van eigen entree en huisnummer (nr.8), rustig gelegen aan de rand van de Bouwmeesterbuurt te Almere-Buiten. Met name de living biedt u een overweldigende ruimte en de aangrenzende grote multifunctionele ruimte laat zich eenvoudig indelen voor vele verschillende bedrijfsvoeringen, hobby's of woonfuncties. Indien gewenst kan e.e.a. ook geheel of gedeeltelijk bij de woning betrokken worden.
In de directe omgeving vindt u openbare voorzieningen zoals een buurtsupermarkt, een gezondheidscentrum, scholen en openbaar vervoer. Het winkelcentrum van Almere-Buiten ligt op korte fietsafstand. Vanaf deze locatie zijn tevens de A6 en A27 goed bereikbaar.

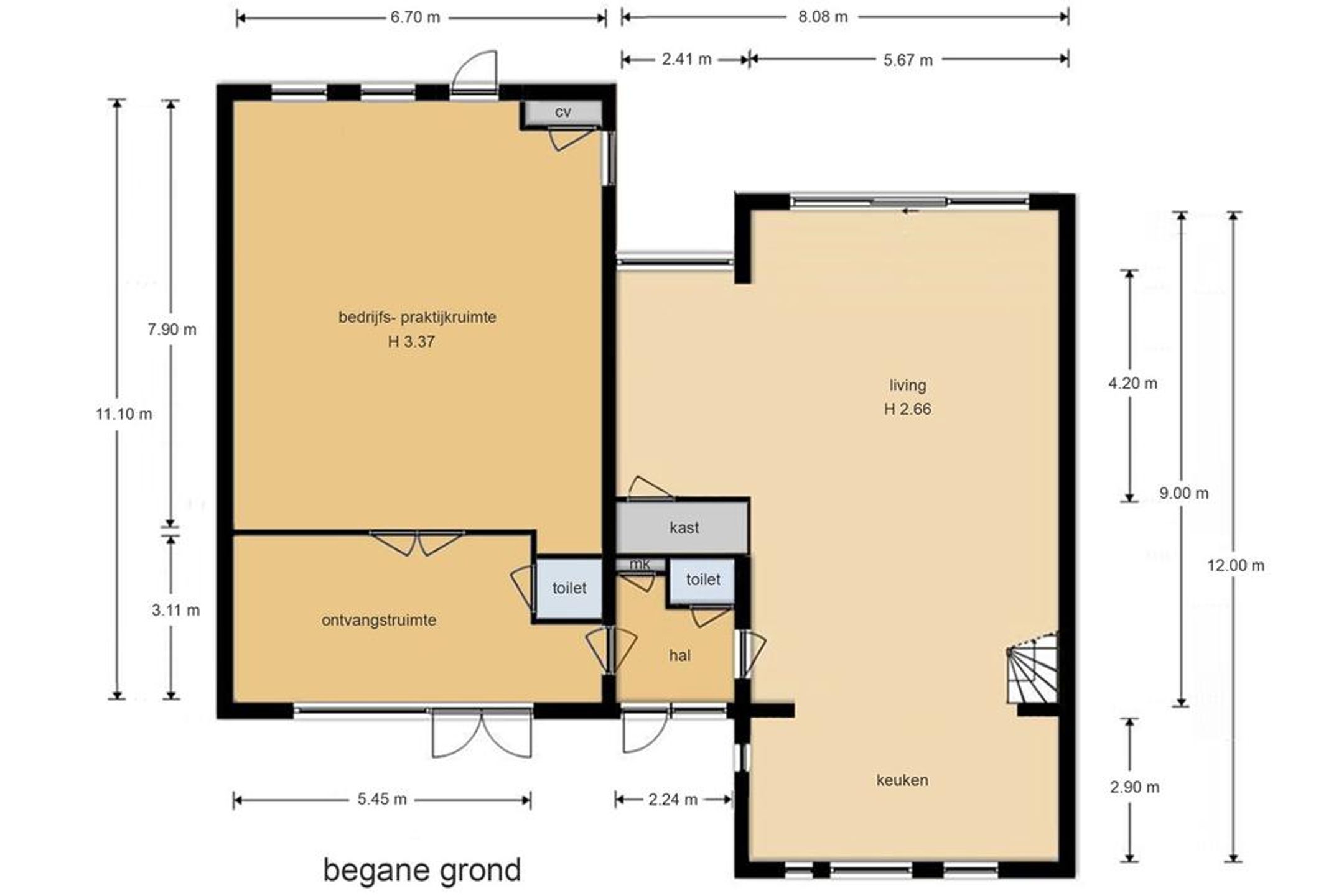
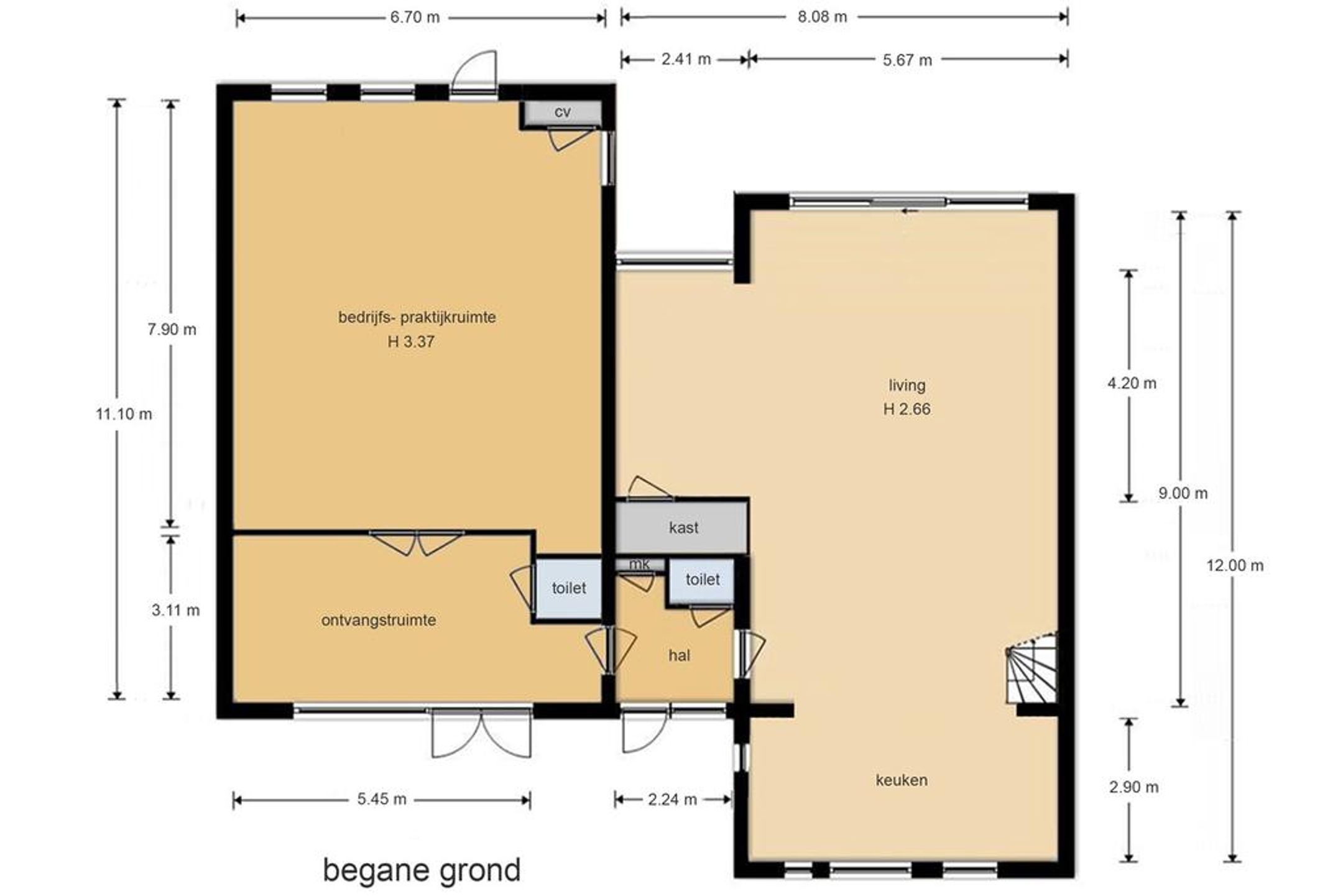
Indeling woning:

Begane grond:
Entree, ruime hal met toegang tot toilet voorzien van vrij hangend closet en fonteintje, meterkast, dubbele binnendeur naar bedrijfsruimte en toegang tot de zeer royale living. De living is zeer royaal met een brede schuifpui naar de achtertuin. De vloer is afgewerkt met fraai woongrind en in de royale en vooral hoge nis aan de zijkant is de eethoek gesitueerd. Hier treft u tevens een praktische extra bergkast.
Aan de voorzijde staat de luxe keuken opgesteld. Deze is opgebouwd uit twee wandopstellingen met centraal het kookeiland met bar. De keuken is samengesteld met hoogglans fronten gecombineerd met zwart kunststof werkbladen. Voorts beschikt u hier over een ATAG 5-pits gaskookplaat met daarboven een RVS afzuigschouw, een AEG vaatwasmachine, oven, oven-magnetroncombinatie en koel-vrieskast (2017).
Middels de hardhouten open trap bereikt u de verdieping.

Verdieping:
Over de open hardhouten trap in de living bereikt u overloop op de verdieping. Hier is een tussendeur geplaatst naar de corridor om eventueel een te veel aan geluid vanaf beneden te weren. Vanuit de bouw is de verdieping verlengd wat duidelijk zichtbaar is door de grotere ontstane ruimte in de slaapkamers en wasruimte. De hoog oplopende plafonds geven de verschillende vertrekken een extra ruimtelijk effect en tevens is de verdieping voorzien van een airco installatie.
Vanuit de corridor heeft u toegang tot drie in grootte variërende slaapkamers, een ruime praktische wasruimte en de badkamer.
De badkamer is modern ingericht en uitgevoerd met een ruime inloopdouche met hardglazen wand, thermostaatkraan, hand- en regendouche, Een breed wasmeubel met twee geïntegreerde waskommen en twee brede lades, een brede spiegel met geïntegreerde verlichting en een vrij hangend closet met inbouw reservoir. Het raam voorziet in wenselijk daglicht en ventilatie.
In de wasruimte treft u extra bergruimte alsmede de unit van de mechanische ventilatie en de INTERGAS HRE cv-ketel uit 2015.

Multifunctionele ruimte: (kantoor, praktijk, hobby, wonen, enz. enz.)
Links van de woning beschikt u over een zeer ruime aangebouwde multifunctionele ruimte welke tot het maximum is uitgebouwd en daardoor u een 75 m2 te bieden heeft. De hoogte van 3,37 m. geeft het geheel een fantastisch ruimtelijk effect. De bedrijfsruimte heeft een eigen entree (huisnr. 8) en is tevens binnendoor door een geluidssluis vanuit de woning te betreden.
Thans is deze unit ingericht met een ruime ontvangst- wachtruimte, toiletruimte en een zeer royale fitness/meditatie ruimte. Wanden zijn keurig afgewerkt en op de vloer ligt een Eiken planken vloer met daaronder comfortabele vloerverwarming. De bedrijfsruimte beschikt over een eigen INTERGAS HRE cv ketel uit 2015 en de twee airco unit bieden de nodige verkoeling.
Uiteraard zijn alle indelingsvarianten en gebruiksvarianten mogelijk mits e.e.a. bij kleinschalige bedrijfsvoering blijft.

Belangrijkste kenmerken:
- Uitstekend invulling van de wens wonen en werken aan huis;
- Parkeren op eigen terrein voor 4 auto's.
- Entree woning(nr.6) en aparte entree bedrijfsruimte (nr.8). Ook binnendoor bereikbaar;
- Zeer ruime living met brede schuifpui en woongrindvloer v.v. vloerverwarming.;
- Zijkamer naast de living met extra bergkast;
- Moderne open woonkeuken met drie opstellingen, gesitueerd aan de voorzijde van de woning en voorzien van alle wenselijk keukenapparatuur;
- 3 in grootte variërende slaapkamers met hoog opgetrokken schuine plafonds;
- Badkamer uitgevoerd met inloopdouche, wasmeubel met twee waskommen en vrij hangend closet;
- Brede achtertuin aangelegd (2017) met terrassen, borders, gazon en houten berging;
- Woonoppervlakte 145 m2. Berging 6 m2. Bedrijfsruimte oppervlakte 75 m2.
- Eigen grond 463 m2.
- Bouwjaar 2007.
- Energielabel A.
Lees de volledige omschrijving

Kenmerken

Algemeen

vraagprijs
€ 400.000 kosten koper
Aangeboden sinds
6+ maanden
Status
Verkocht
Aanvaarding
In overleg
Soort woonhuis
Eengezinswoning, geschakelde woning
Soort bouw
Bestaande bouw
Bouwjaar
2007
Soort dak
Bitumineuze dakbedekking, pannen
Ligging
Aan rustige weg, in woonwijk

Oppervlakten en inhoud

Wonen
145 m²
Overige inpandige ruimte
75 m²
Externe bergruimte
6 m²
Perceel
463 m²
Inhoud
820 m³

Indeling

Aantal kamers
6 kamers (3 slaapkamers)
Aantal badkamers
1 badkamer
Badkamervoorzieningen
Douche, dubbele wastafel, toilet
Aantal woonlagen
2
Voorzieningen
Airconditioning, mechanische ventilatie, schuifpui, tv kabel

Energie

Energielabel
A
Isolatie
Dakisolatie, dubbel glas, muurisolatie, vloerisolatie, volledig geisoleerd
Verwarming
Cv ketel, vloerverwarming gedeeltelijk
Warm water
Cv ketel
Cv-ketel
INTERGAS (gas gestookt combiketel uit 2015, eigendom)

Kadastrale gegevens

Perceelnaam
Almere M 2248
Oppervlakte
463 m²
Eigendomssituatie
Volle eigendom
Perceel
AMR04-M-2248

Buitenruimte

Tuin
Achtertuin, voortuin
Achtertuin
180 m²
Ligging tuin
Noordoost

Parkeergelegenheid

Soort parkeergelegenheid
Openbaar parkeren
Bekijk alle kenmerken