Verkocht

Zanzibarstraat 14 1339 RR Almere

Vraagprijs € 275.000 k.k.

Omschrijving

Deze ZEER RUIME GEZINSWONING is gelegen in een zeer aantrekkelijk en groen opgezet gedeelte aan de rand van de Eilandenbuurt. Deze unieke woning ligt aan een rustige straat met uitsluitend bestemmingsverkeer. De rustige straat, het openbaar groen, de bosrijke omgeving en een grote speelweide met diverse speeltoestellen maken deze woning de ideale leefomgeving voor uw gezin. De buurt is ideaal gesitueerd ten opzichte van de uitvalswegen naar A6 en A27 en het NS station. Alle dagelijkse voorzieningen zoals scholen, openbaar vervoer en winkels zijn binnen handbereik.

Indeling:

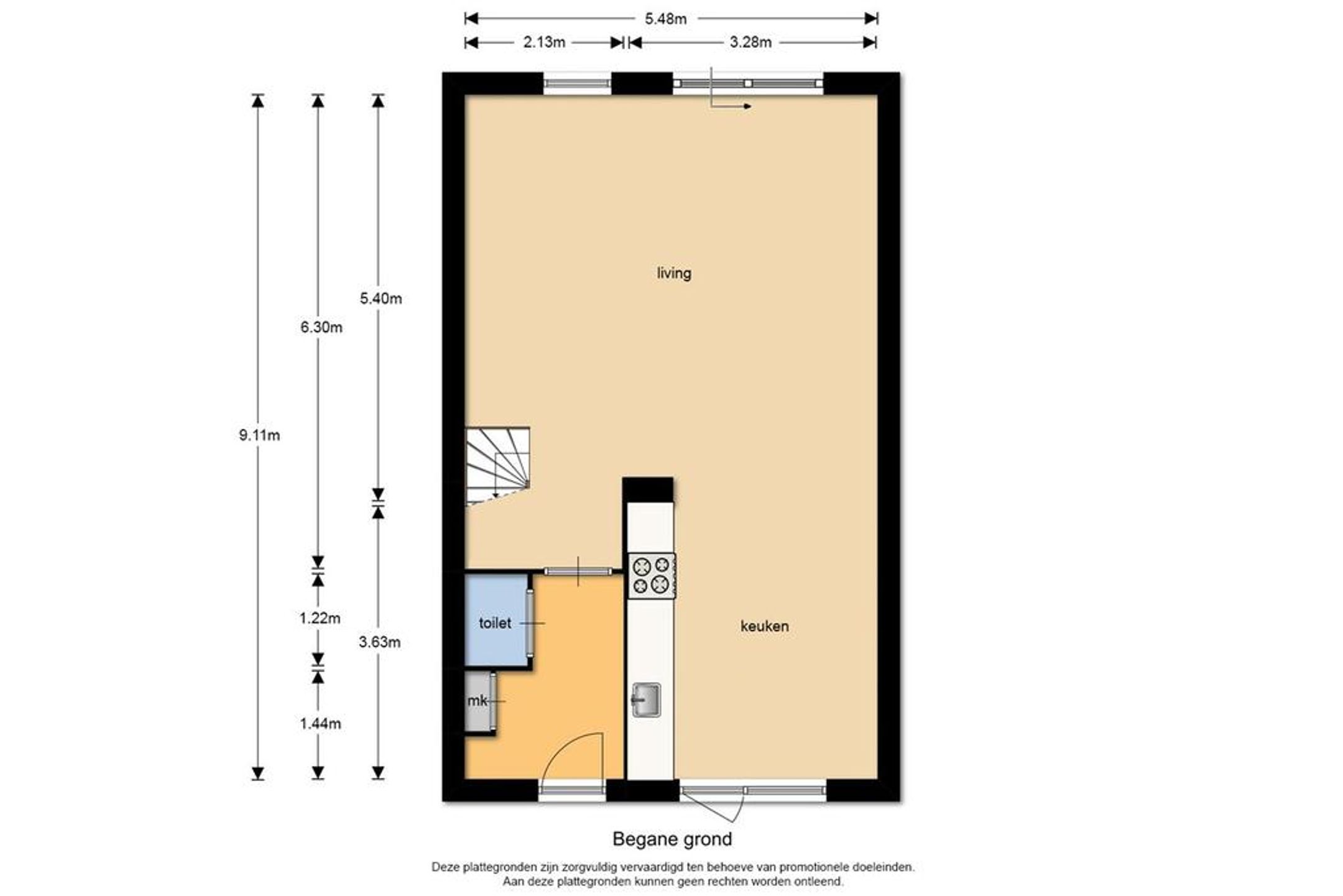
Begane grond

Ruime hal welke toegang biedt tot de garderobe, de meterkast, de toiletruimte en de ruime tuingerichte living.
De wanden zijn voorzien van stijlvol behang. Op de vloer liggen lichte tint vloertegels. De standaard deuren zijn vervangen door houten kaderdeuren. De houten deur naar de living is voorzien van glas en lood.
De toiletruimte is tot het plafond betegeld en voorzien van een vrijhangend closet met inbouwreservoir en een fonteintje.

Wat u direct zal opvallen zodra u de living betreedt is het ruimtelijke gevoel en het vele wenselijke daglicht. Dit gevoel komt doordat deze woning breder (5,70 m.) is dan vele standaard tussenwoningen (4.90 of 5.10 m.) en dat de achtergevel is voorzien van een grote aluminium schuifpui met daarnaast een extra raam. De overkapping geeft de toch al riante tuingerichte living een heerlijk ruimtelijk gevoel en de zonnige achtertuin is daardoor een verlengstuk van uw leefruimte geworden. De wanden in de living zijn voorzien van stijlvol behang gecombineerd met een houten lambrisering. Op de vloer liggen vloertegels met daaronder comfortabele vloerverwarming.

Aan de voorzijde van de woning bevindt zich de ruime keuken. Ook deze ruimte is weer heerlijk licht door het grote tot de grond doorlopende raamkozijn met extra loopdeur in de voorgevel. De brede keuken laat het eenvoudig toe dat hier een grote eettafel kan worden geplaatst. De keuken is uitgevoerd met crème wit kaderfronten en biedt veel bergruimte in de diverse onder en bovenkasten, de glazen servieskasten voorzien van verlichting en de praktische apothekerskast. De achterwand is betegeld met metrotegels. Voorts beschikt u over een vaatwasser, een kookplaat, een oven en een inbouw koel/vrieskast voorzien van 3 vrieslades.

1e verdieping
Via de hardhouten open trap in de living bereikt u de overloop op de 1e verdieping. De royale overloop laat het toe dat hier eventueel een computerhoek of werkplek wordt gecreëerd. Het gevelraam voorziet in wenselijk daglicht en ventilatie. De overloop verschaft u toegang tot de 3 in grootte variërende slaapkamers, de riante badkamer en de trapopgang naar de royale 2e verdieping. Thans zijn de kamers hier ingericht als zijnde een master-bedroom, een extra slaapkamer en een garderobekamer. De wanden zijn voorzien van behang (master-bedroom glad stucwerk) en op de vloer ligt comfortabel tapijt.

De ruime badkamer is tot het plafond betegeld en op de vloer liggen vloertegels. Voorts beschikt u over een ligbad voorzien van thermostaatkraan en extra handdouche, een douchecabine voorzien van thermostaatkraan, een badmeubel met geïntegreerde waskom, onderkasten, bovenkast en spiegel voorzien van verlichting, een closet en een designradiator.

2e Verdieping
Via de dichte gestoffeerde trap gaat u naar de riante 2e verdieping welke voorheen één grote onbenoemde ruimte was. Thans is hier een zeer royale overloop c.q. wasruimte, een ruime bergkast en een zeer ruime 4e hobby-, studeer- of slaapkamer gerealiseerd. De wanden zijn voorzien van behang en op de vloer liggen vloertegels. In deze ruimte bevindt zich de aansluitingen voor de wasmachine en wasdroger, de Valliant cv ketel en een WTW-unit.

Het realiseren van de extra kamer op deze verdieping is mede mogelijk geworden door het plaatsen van een brede dakkapel. De kamer is over de gehele diepte van de woning gesitueerd en daardoor heerlijk ruim. De wanden zijn voorzien van behang en op de vloer ligt comfortabel tapijt.

Extern
De voorzijde van de woning is gelegen aan een rustige straat met uitsluitend bestemmingsverkeer. De diepe voortuin (ca. 6 meter) is geheel bestraat en biedt parkeerruimte aan 1 á 2 auto's. Extra parkeerplaatsen liggen aan de straat. De hoge voorgevels met de ca. 1,8 meter brede overstekken geven de woning een imposante uitstraling en toont duidelijk het volume welke zich achter de gevel bevindt. Een breed raamkozijn in de voorgevel met extra loopdeur maakt het mogelijk de voortuin via de woonkeuken te betreden.

De diepe en vooral zeer zonnige achtertuin is heerlijk gelegen op het westen. Het is heerlijk vertoeven onder de woning brede overkapping en indien het te veel aan zonlicht kunt u tegenhouden middels het brede elektrische zonnescherm. Het terras in de overkapping is voorzien van onderhoudsvrij kunststof hout look planken. Voorts is de achtertuin ingericht met sierbestrating en borders met een diversiteit aan planten. De tuin is tevens bereikbaar via een achterom.
Uw fietsen en tuinmeubilair kunt u bergen in de houten buitenberging.

Belangrijke kenmerken:
- woning gelegen in een rustige straat met alleen bestemmingsverkeer;
- royale tuingerichte living voorzien van vloerverwarming;
- ruime en lichte woonkeuken;
- 4 in grootte variërende slaapkamers;
- grote complete badkamer;
- deuren begane grond vervangen door houten kaderdeuren;
- parkeren op eigen terrein en langs openbare weg;
- achtertuin voorzien van brede overkapping met breed elektrisch zonnescherm;
- buitenkranen voor en achter;
- ideale leefomgeving voor uw gezin;
- aanvaarding in overleg.
Lees de volledige omschrijving

Kenmerken

Algemeen

vraagprijs
€ 275.000 kosten koper
Aangeboden sinds
6+ maanden
Status
Verkocht
Aanvaarding
In overleg
Soort woonhuis
Eengezinswoning, tussenwoning
Soort bouw
Bestaande bouw
Bouwjaar
2001
Soort dak
Pannen
Ligging
Aan rustige weg, in woonwijk

Oppervlakten en inhoud

Wonen
134 m²
Gebouwgebonden Buitenruimte
16 m²
Externe bergruimte
9 m²
Perceel
168 m²
Inhoud
415 m³

Indeling

Aantal kamers
5 kamers (4 slaapkamers)
Aantal badkamers
1 badkamer
Badkamervoorzieningen
Douche, ligbad, toilet, wastafel
Aantal woonlagen
3
Voorzieningen
Buitenzonwering, glasvezel kabel, mechanische ventilatie, schuifpui, tv kabel

Energie

Isolatie
Dakisolatie, dubbel glas, muurisolatie, vloerisolatie, volledig geisoleerd
Verwarming
Cv ketel, vloerverwarming gedeeltelijk
Warm water
Cv ketel
Cv-ketel
Vaillant ( gestookt combiketel uit , eigendom)

Kadastrale gegevens

Perceelnaam
Almere B 5508
Oppervlakte
168 m²
Eigendomssituatie
Volle eigendom
Perceel
AMR04-B-5508

Buitenruimte

Tuin
Achtertuin, voortuin
Achtertuin
86 m²
Ligging tuin
West bereikbaar via achterom

Parkeergelegenheid

Soort parkeergelegenheid
Openbaar parkeren
Bekijk alle kenmerken